Инсталляция — монтажная конструкция для крепления подвесной сантехники (унитазов, биде, раковин, писсуаров).
Правильный выбор — залог надёжности, удобства и долговечности системы.
В Челябинске приобрести качественную инсталляцию можно в магазине
«Мир сантехники» (адрес: 454084, г. Челябинск, Свердловский проспект, 33 — напротив автомобильного училища).
Разберём ключевые критерии выбора.
Выбор зависит от особенностей помещения и несущих конструкций.
Блочная система
крепится к капитальной стене с помощью анкерных болтов;
экономит пространство;
подходит для стандартных санузлов;
требует несущей стены толщиной не менее 120 мм.
Рамная система
устанавливается на пол;
монтируется в фальш‑стены и перегородки из гипсокартона;
позволяет регулировать высоту установки;
подходит для разных типов стен.
Угловая система
специальная конструкция для монтажа в углу помещения;
помогает задействовать пространство в совмещённых санузлах с ограничениями по площади.

Фото: типы конструкций инсталляций
Учитывайте габариты помещения.
Ширина:
стандартная — 500–600 мм;
узкие модели — до 300 мм (для компактных санузлов).
Высота:
стандартная — до 112 см;
низкие системы — до 82 см (для маленьких санузлов).
Глубина:
рамные модели — до 300 мм;
блочные/компактные — до 150 мм.
Важно: при облицовке гипсокартоном предусмотрите дополнительное пространство по бокам для профилей.

Фото: габариты инсталляций
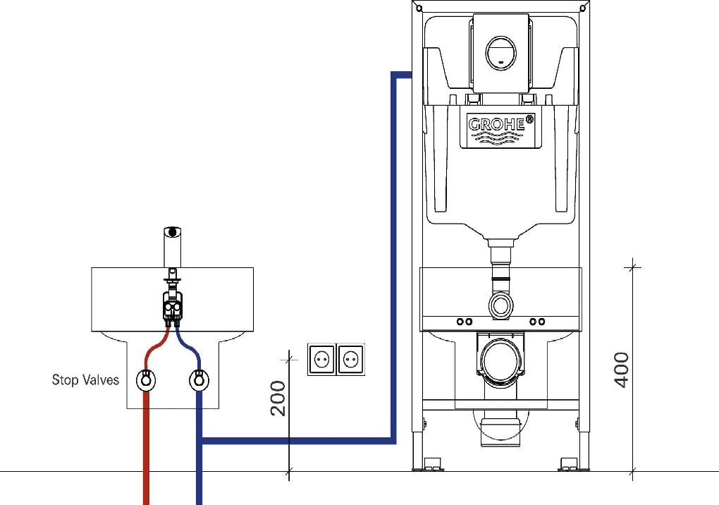
Проверьте расположение отверстий для подвода воды (сзади, сбоку, сверху) — они должны соответствовать расположению стояка в помещении.
Самый распространённый тип — подвод сбоку.
Некоторые модели допускают подвод с нескольких сторон (удобно при сложной разводке).

Фото: варианты подвода воды
Кнопка смыва — единственный видимый элемент после монтажа. Важны:
Материал: пластик, металл, стекло (практичны и долговечны).
Тип механизма:
Механический — простой и надёжный (как у напольного унитаза).
Пневматический — позволяет разместить кнопку на расстоянии до 2–2,5 м от инсталляции (удобно для угловых установок).
Сенсорный — гигиеничен для общественных мест (работает от батареек или сети).
Дизайн — должен соответствовать стилю помещения.
Важно: кнопки одного производителя обычно не подходят к инсталляциям другого.
В магазине «Мир сантехники» вам помогут подобрать совместимые элементы.

Фото: виды кнопок смыва
Базовый набор (должен присутствовать в каждой инсталляции):
несущая рама;
сливной бачок;
крепёжные элементы;
переходник;
кнопка смыва.
Дополнительно проверьте наличие:
элементов шумоизоляции;
прокладок для предотвращения шума и деформации плитки;
ревизионного окна (для обслуживания).

Фото: комплектация инсталляции
Обращайте внимание на:
Расчётную нагрузку:
для жилых помещений — достаточно 400 кг;
для общественных мест — не менее 400–500 кг.
Объём бачка: влияет на расход воды (стандарт — 3–9 л).
Регулировку глубины и высоты монтажа: полезна при нестандартных условиях.
Изоляцию бачка: снижает шум и предотвращает конденсат.
Межосевое расстояние креплений (18 см или 23 см): должно совпадать с унитазом.
Наличие системы «смыв‑стоп» или двойного слива: экономит воду.
Фото: внутренние элементы инсталляции
Выбирайте проверенных производителей. В магазине «Мир сантехники» представлены модели разных ценовых сегментов:
Премиум‑класс (гарантия 10+ лет):
Geberit (Швейцария);
Grohe (Германия);
AM.PM.
Средний класс (гарантия 5–7 лет):
TECE (Германия);
OLI;
Vitra (Турция).
Бюджетный сегмент (гарантия 2–3 года):
Cersanit;
Grossman.
Совет: проверьте доступность запасных частей для выбранной модели — это упростит будущий ремонт.
Консультанты «Мира сантехники» помогут подобрать варианты с удобной сервисной поддержкой.
Некоторые модели предлагают:
двойной слив (большой/малый объём);
прерывание слива («смыв‑стоп»);
бесконтактные кнопки (сенсорные);
антивандальные панели (для коммерческих объектов);
регулировку объёма смыва;
ароматизацию воздуха;
дезинфекцию воды.
Определены размеры помещения и место установки.
Выбран тип конструкции (блочная/рамная/угловая).
Проверено соответствие подвода воды.
Подобрана кнопка смыва (материал, тип, дизайн).
Проверена комплектация и наличие изоляции.
Уточнена расчётная нагрузка и возможность регулировки.
Выбран производитель с гарантией и сервисной поддержкой.
Учтены дополнительные опции (при необходимости).
При выборе инсталляции ориентируйтесь на:
особенности помещения (площадь, тип стен, расположение стояка);
требования к нагрузке и функционалу (жилое/общественное помещение);
репутацию производителя и доступность сервиса;
совместимость с унитазом (межосевое расстояние, высота).
Важно: монтаж инсталляции лучше доверить профессионалам — это минимизирует риск ошибок и протечек. В магазине «Мир сантехники» вы можете заказать не только покупку, но и установку оборудования.
Адрес: 454084 г.Челябинск Свердловский проспект 33. (напротив автомобильного училища)
Часы работы:
с 10:00 до 19:00 - будничные дни.
с 10:00 до 18:00 - суббота.
с 10:00 до 17:00 - воскресенье.
Звоните прямо сейчас!
Телефон: 8(351) 777-63-03, 777-63-04